Logo

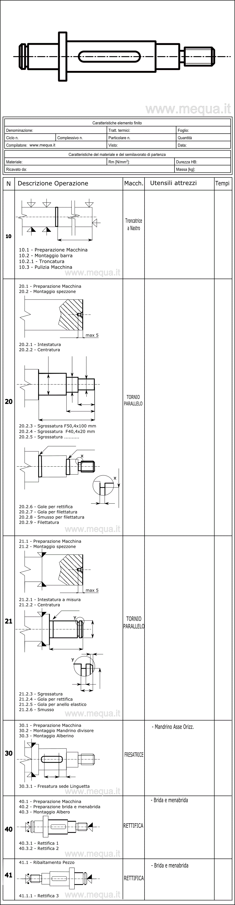
Esempio Ciclo di Lavoro.

Esempio ciclo di lavoro